神戸エリア
神戸エリア

神戸市北区鈴蘭台西町1丁目 新築戸建

価格
3,980万円
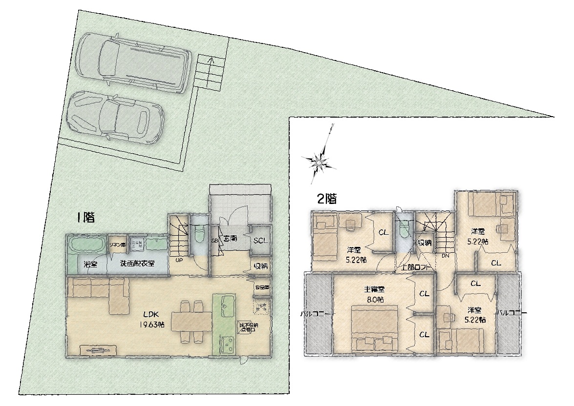
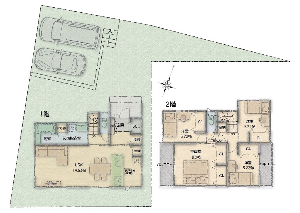
面積 / 間取り
4LDK
  • 所在地
    神戸市北区鈴蘭台西町1丁目
  • 最寄駅
    神戸電鉄「鈴蘭台西口」駅 徒歩約3分
    神戸電鉄「鈴蘭台」駅 徒歩約8分
  • 土地面積
    180.69㎡(54.65坪)
  • 建物面積
    1階:51.43㎡
    2階:52.65㎡
    合計:104.08㎡

神戸電鉄「鈴蘭台」駅徒歩約8分!
4LDK・車庫スペース2台分・3980万円!
※期間限定:外装や住宅設備のカラーセレクト可能。

物件情報

  • 建物構造
    木造/カラーベストコロニアル葺/2階建
  • 土地権利
    所有権
  • 地目
    宅地
  • 都市計画
    市街化区域
  • 用途地域
    第1種低層住居専用地域
  • 建ぺい率
    50%
  • 容積率
    100%
  • その他法令上の制限
    第1種高度地区
    宅地造成工事規制区域
    防火指定なし(22条区域)
  • 築年月
    2026年8月予定
  • 駐車場
    2台
  • 現況
    更地
  • 引渡日
    相談
  • 接道状況
    西側公道 幅員約8.20m
  • 設備
    都市ガス・上下水道・電気

物件の特徴

  • 4LDK!3,980万円!

  • 約54坪のゆとりある土地です。

  • 前面道路は8.20mあるので楽に駐車できます。

  • 2台駐車可能です。

立地・周辺環境

  • 神戸電鉄「鈴蘭台西口」駅 徒歩約3分

  • 神戸電鉄「鈴蘭台」駅  徒歩約8分

  • ダイエー鈴蘭台店 徒歩約6分

  • コープ鈴蘭台東店 徒歩約9分

  • 鈴蘭台小学校 徒歩約2分

  • 鈴蘭台中学校 徒歩約17分

  • 鈴蘭台幼稚園 徒歩約6分

  • 鈴蘭台西町保育所 徒歩約6分

  • 兵庫信用金庫 鈴蘭台支店 徒歩約5分

  • 三井住友銀行 鈴蘭台支店 徒歩約10分

  • みなと銀行 鈴蘭台支店 徒歩約10分

  • 神戸鈴蘭台西郵便局 徒歩約3分

  • 北区役所 徒歩約7分

  • 鈴蘭台南町公園 徒歩約2分

  • 中山公園 徒歩約7分

この物件の
ココがおすすめ!

  • 19.63帖の広々LDK
  • 暮らしやすいが詰まった全室洋室の快適設計
  • 家事動線も考えた間取り
  • 安心・快適な子育て空間
  • 食洗機・浄水器・浴室乾燥機等の充実した設備
  • 脱衣所・洗面所独立
  • パントリー・SCL他収納多数
  • 駐車スペース2台分
  • ロフトも完備!収納としても使えます。

この物件を取り扱う店舗

神戸店

  • 住所
    〒657-0033 神戸市灘区徳井町2丁目1-4
  • 電話
    078-841-3322
  • 営業時間
    9:00〜18:00
  • 店休日
    毎週水曜・年末年始・GW・お盆
対応エリア:
東灘区、灘区、中央区、北区